alquiler

Departamento 1 dormitorio

Next
Prev
Anterior
Siguiente
Estado de Construcción
Ubicación

Av. Francia 1589, Rosario, Santa Fe

Precio

$ 420.000

Dormitorios1 Dormitorios
Superficie

30 m² totales

antiguedad

Antigüedad: 8 años

expensas

Expensas: $ 50000

SEMIPISO
MUY LUMINOSO

Compartir por: WhatsApp Email

SOBRE ESTA PROPIEDAD

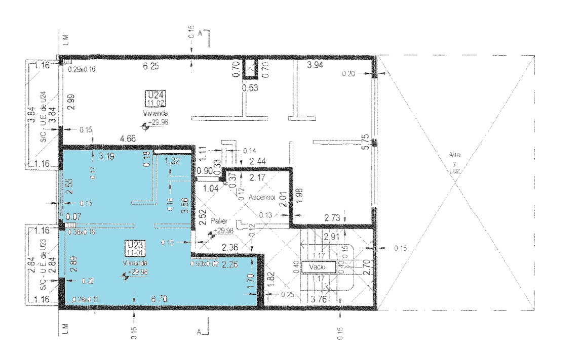
Departamento externo con balcón orientado al Oeste en piso 11.

Estar - comedor con cocina integrada, dormitorio con placard con persiana de PVC eléctrica y baño completo.

Semipiso.

Piso de porcelanato en todo el departamento.

Edificio de PB + 11 pisos.

Ubicado a tan solo 1 cuadra de Av. Pellegrini y 3 cuadras de la UCA de Derecho.

Impuestos aproximados:
API: $2.700.-
Tgi: $22.800.-
Aguas: $ 18.200.-


VER PLANO
Estado de construcción

UBICACIÓN

Propiedades interesantes

Anterior
Siguiente
WhatsApp