venta | U$S 12.000

Otro

Next
Prev
Anterior
Siguiente
Estado de Construcción
Ubicación

Sarmiento 657, Rosario, Santa Fe

Precio

U$S 12.000

Superficie

11 m² totales

antiguedad

Antigüedad: 42 años

expensas

Expensas: $ 7000

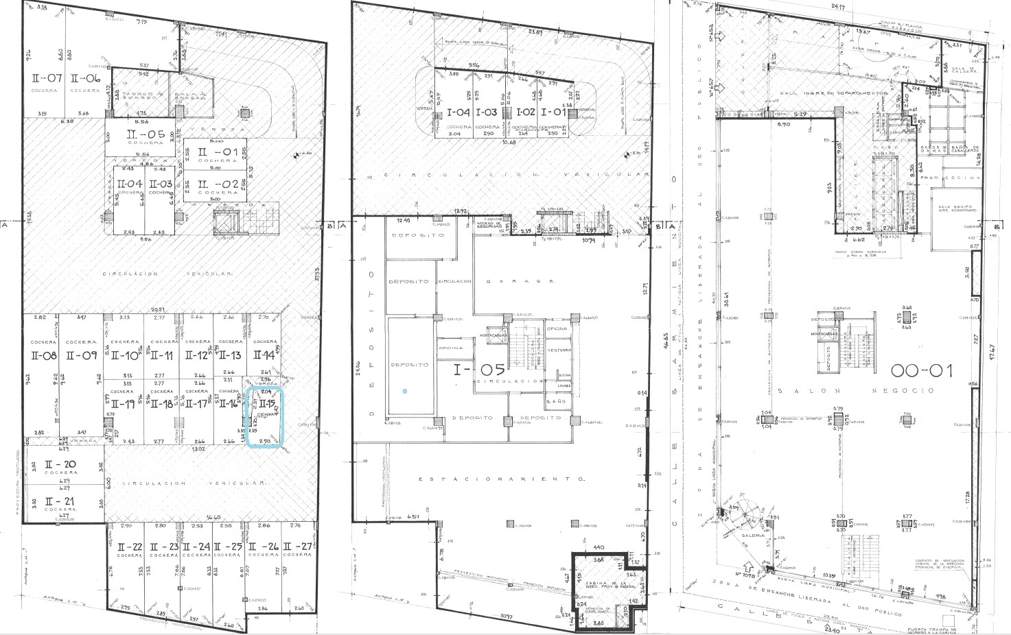
COCHERA
2DO SUBSUELO

Compartir por: WhatsApp Email

SOBRE ESTA PROPIEDAD

Cochera ubicada en un 2do. subsuelo en edificio de viviendas.

Fácil acceso a través de rampa de hormigón.

Ubicación: ingreso por calle Sarmiento a pasos de bancos y 1 cuadra de Peatonal Córdoba.

Impuestos:
Tgi: $ 1.170.-
Api: $ 464.-
Api: $


VER PLANO
Estado de construcción

UBICACIÓN

Propiedades interesantes

Anterior
Siguiente
WhatsApp